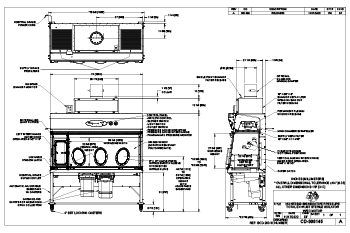
Product specification drawing of nominal 6-foot (1.8 m) width total exhaust Compounding Aseptic Containment Isolator (CACI) model NU-NTE800-600.
View the Full Guide for Compounding Aseptic Containment Isolator NU-NTE800-600 Drawing
Compounding Aseptic Containment Isolator NU-NTE800-600 Drawing
Related Resources
Webinar
Cleanroom Layout Design Under USP 800
Learn the necessary elements to establish a cleanroom layout under USP 800.
Webinar
USP Compliance PEC Cleaning and Decontamination
Fred Massoomi outlines how to establish standard operating procedures (SOPs) for cleaning PECs, the level of detail required for these SOPs, and staff training requirements.
White Paper
Understanding Compounding Isolators
This white paper discusses restricted access barrier systems (RABS) in the pharmacy, how they operate, cleaning considerations, maintenance, and more.
Drawing
Water Jacket CO2 Incubator Drawing
Discover the intricate design of the In-VitroCell Water Jacket CO2 Incubator series through detailed product drawings for models NU-8600, NU-8625, NU-8631, and NU-8645. These drawings reveal the advanced features and precise engineering that make these incubators essential for diverse cell culture applications.
Video
Testing Your Adjustable Base Stand
Learn how to test your adjustable base stand on your PharmaGard Compouding Isolator
Webinar
USP Compliance USP 795 Facility Requirements
Bryan Prince reviews the timeline for USP 795 compliance, QC processes for nonsterile compounding, staff training steps, and more.
Drawing
Telescoping Base Stand Assembly with Leg Levelers 31-inch Depth
View dimensions and assembly of the 31-inch depth telescoping base stand accessory with leg levelers.
Webinar
USP Compliance Preparing for Cleanroom Certification
Jim Wagner addresses how to work with a certifier, typical issues that arise during the certification process, how to respond to the certification report, and what follow-up measures should be taken.
Article
Use of Pharmacy Compounding Isolator Onboard US Navy Ship
NuAire pharmacy compounding isolators are used onboard ships of the United States Navy, particularly the hospital ships USNS Mercy and USNS Comfort.
White Paper
USP 800 Gap Analysis
USP 800 is going to financially impact your pharmacy’s future business model so this white paper focuses on five important details that define the "why" for considering a capital investment.
General Technical Bulletin
Using a Chemo Pad in a Class II, Type A2 Biosafety Cabinet
The bulleting entitled Chemo Pad Containment Capability of a Biosafety Cabinet offers insight into the performance capabilities of a biosafety cabinet (BSC) using a chemotherapy pad on the work surface.
Webinar
USP Compliance Staff Training for USP
Fred Massoomi, PharmD, FASHP, reviews staffing considerations under USP 800 including topics such as the value of didactic and experiential training and how to establish training by position.