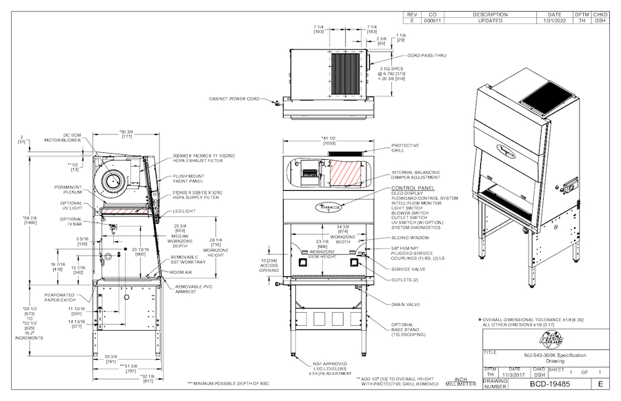
Product specification drawing for 115-Volt nominal 0.9-meter (3-feet) wide LabGard Class II, Type A2 Biosafety Cabinet model NU-543-300K.
View the Full Guide for NU-543-300K Class II, Type A2 Biosafety Cabinet Cut Sheet
NU-543-300K Class II, Type A2 Biosafety Cabinet Cut Sheet
Related Resources
Video
Telescoping Base Stand Assembly for Your Class II Biosafety Cabinet
This video shows how to assembly a telescoping base stand and safely install your Class II Biosafety Cabinet on the stand.
White Paper
Surface Decontamination in a Biosafety Cabinet
Learn the right techniques for surface decontamination in a biosafety cabinet. Protect personnel, products, and environments. Download NuAire’s expert white paper today.
Article
Smoke Tests NSF/ANSI 49
From NSF International, watch this video to learn how accredited certifiers perform a four different times of smoke tests based on NSF/ANSI 49: Biosafety Cabinetry – Design, Construction, Performance, and Field Certification. Source – NSF International
Video
Therapeutics to Combat Aggressive Cancer
Dr. Aleksandra Dukic, postdoctoral researcher, Institute for Cancer Research, Oslo University Hospital, describes a novel target for inhibiting glioblastoma cancer invasion into surrounding brain tissue and the importance of this work in addressing the need for innovative therapeutics to combat this aggressive cancer. Hear how the culture and analysis of glioblastoma patient-derived cells are vital […]
Video
Understanding the Biosafety Cabinet
Biosafety Cabinets (BSCs) a are designed to remove or minimize exposures to hazardous biological materials and particulates.
Video
Telescoping Base Stand Assembly
Learn how to assemble telescoping base stands with simple tools. Follow step-by-step instructions for secure assembly and mounting of your biosafety cabinet.
Video
Tailor Made Biosafety Cabinets for Automation
Gain insight into the custom biosafety cabinet process, and collaborate with engineers to design tailor-made solutions for specific lab workflows, ensuring the safe containment of automated equipment while optimizing performance.
White Paper
Tips for Purchasing a Biosafety Cabinet
The white paper is a guide for principal investigators when purchasing a biosafety cabinet.
Article
Setting Up the Lab
Setting up a lab requires strategic design for safety and efficiency, and the choice of appropriate biosafety cabinets based on the risk level of materials handled.
Drawing
Water Jacket CO2 Incubator Drawing
Discover the intricate design of the In-VitroCell Water Jacket CO2 Incubator series through detailed product drawings for models NU-8600, NU-8625, NU-8631, and NU-8645. These drawings reveal the advanced features and precise engineering that make these incubators essential for diverse cell culture applications.
White Paper
Standard Operating Procedures (SOPs) for Biosafety Cabinet Use
Learn why and how to create standard operating procedures (SOPs) for biosafety cabinet use to improve lab safety, compliance, and workflow consistency. Download the full guide today.
Ebook
10 Steps to Cleaning a Spill in a Biosafety Cabinet
Discover how to safely handle spills in a Biosafety Cabinet with NuAire's eBook, "Ten Easy Steps for Cleaning a Spill in the Biosafety Cabinet." This guide provides clear instructions on spill management, decontamination, and adherence to laboratory safety standards.