resource background
Drawing

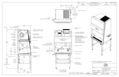
NU-540-300E 0.9m 230V Class II, Type A2 Biosafety Cabinet – Engineering Drawing

NU-540-300E 0.9m 230V Class II, Type A2 Biosafety Cabinet - Engineering Drawing
resource background

This engineering drawing comprehensively details the NU-540-300E LabGard Class II, Type A2 Biosafety Cabinet. The 230-volt, 0.9-meter (3-foot) width cabinet features advanced safety components, including HEPA filters, a sliding window, and an optional UV light. The AeroMax Control System, DC ECM motor/blower, LED lighting, and removable work surfaces are key elements highlighted. The drawing specifies dimensions for the work zone, overall cabinet, and adjustable base stand. It also illustrates the locations of service valves, electrical outlets, and the control panel. This document is essential for laboratory planners, facility managers, and researchers requiring precise specifications for integrating this biosafety cabinet into their workspace, ensuring compliance with safety standards and optimal performance.

View the Full Guide for NU-540-300E 0.9m 230V Class II, Type A2 Biosafety Cabinet - Engineering Drawing