resource background
Drawing

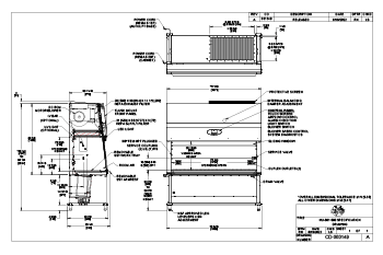
NU-581-600, 6-foot Biosafety Cabinet Drawing (115V)

NU-581-600, 6-foot Biosafety Cabinet Drawing (115V)
resource background

The NU-581-600 Biosafety Cabinet with Automatic Base Stand Drawing showcases ergonomic design and advanced safety features for modern laboratories. This precision-engineered unit offers an automatic height-adjustable base stand, ensuring optimal comfort and adaptability for various users and procedures. The detailed drawing for download captures the meticulous design, including the specialized dimensions and placements of crucial components such as the DC ECM motor/blower, optional IV bar, UV light, and the intricate HEPA filtration system that guarantees a sterile and safe environment for handling sensitive materials.

View the Full Guide for NU-581-600, 6-foot Biosafety Cabinet Drawing (115V)