Product specification drawing for 115-volt 4-feet (1.2 meters) wide vertical laminar airflow workstation models NU-340-430 and NU-340-436 with leg levelers.
View the Full Guide for NU-340-430/NU-340-436 Laminar Airflow Workstation 115V Cut Sheet
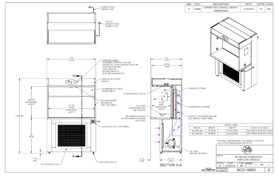
NU-340-430/NU-340-436 Laminar Airflow Workstation 115V Cut Sheet
Related Resources
Infographic
USP 797 and USP 800 PEC Requirements
Follow this flowchart for an easy method to identify what Primary Engineering Control (PEC) or Containment Primary Engineering Control (C-PEC) your pharmacy needs.
White Paper
USP 800 Gap Analysis
USP 800 is going to financially impact your pharmacy’s future business model so this white paper focuses on five important details that define the "why" for considering a capital investment.
Drawing
Water Jacket CO2 Incubator Drawing
Discover the intricate design of the In-VitroCell Water Jacket CO2 Incubator series through detailed product drawings for models NU-8600, NU-8625, NU-8631, and NU-8645. These drawings reveal the advanced features and precise engineering that make these incubators essential for diverse cell culture applications.
Drawing
Telescoping Base Stand Assembly with Leg Levelers 31-inch Depth
View dimensions and assembly of the 31-inch depth telescoping base stand accessory with leg levelers.
Webinar
Cleanroom Layout Design Under USP 800
Learn the necessary elements to establish a cleanroom layout under USP 800.
Manuals
NuAire NU-140 (115V) AireGard™ Laminar Flow Clean Workstation Operations & Maintenance Manual
NU-140 (115V) O&M Manual — complete guide to installing, operating, and maintaining NuAire’s AireGard™ Laminar Flow Clean Workstation.
Drawing
NU-240-430, NU-240-436 Specification Drawing
Explore the NU-240-430 and NU-240-436 workstation specs with AeroMax control, HEPA filtration, and optional enhancements for a clean, efficient workspace.
Manuals
NuAire NU-140E Series A (230V) Operations & Maintenance Manual – AireGard™ Vertical Laminar Flow Workstation
Official NU-140E Series A (230V) manual with setup, safety, and maintenance instructions for NuAire AireGard™ Vertical Laminar Flow Clean Workstations.
Manuals
NuAire NU-140E (230V) AireGard™ Laminar Flow Clean Workstation Operations & Maintenance Manual
NU-140E (230V) O&M Manual — installation, operation, and maintenance guide for global labs using NuAire’s AireGard™ Laminar Flow Clean Workstation.
Drawing
NU-240-330, NU-240-336 Specification Drawing
Explore the NU-240-330 and NU-240-336 Spec Drawing for the 3-foot wide AireGard ES NU-240 Workstation, featuring HEPA filtration, AeroMax Control, and customizable options for clean air environments.
Manuals
NuAire NU-140 Series A (115V) AireGard™ Vertical Laminar Flow Clean Workstation Operations & Maintenance Manual
Download the NU-140 Series A (115V) O&M Manual for AireGard™ Vertical Laminar Flow Clean Workstations.
Drawing
NU-240-630 Laminar Airflow Workstation 115V Cut Sheet
Product specification drawing for 115-volt nominal 6-feet (1.8 meters) horizontal laminar airflow workstation model NU-240-630.